Highlights of 3b-60 Sans Soucci & Guinea Gut
- Area
- St John
- Estate
- Sans Soucci & Guinea Gut
- Landscaping
- Professional
- Quarter
- Cruz Bay
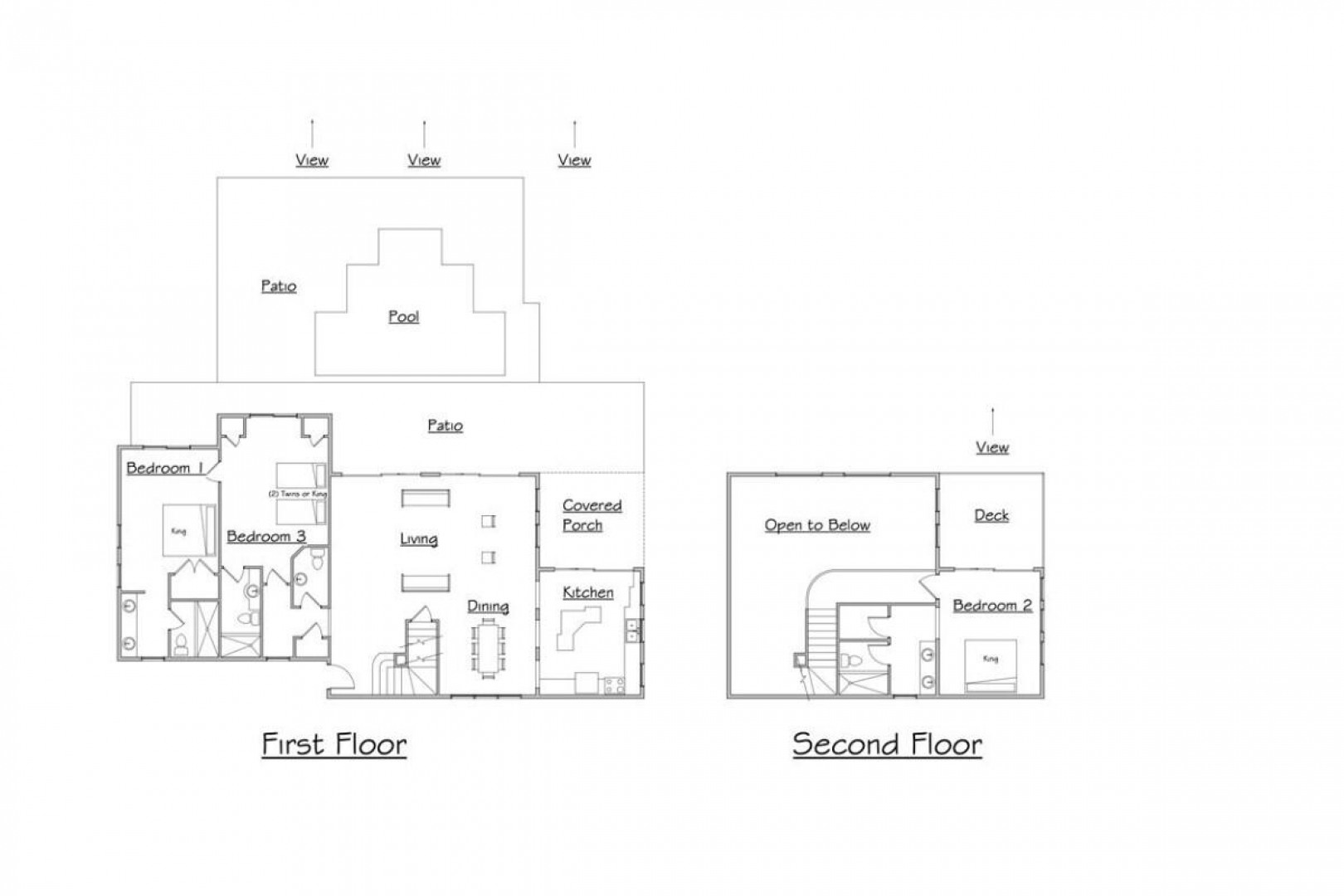
- Total Approx. SqFt
- 2,500
- Total Bedrooms
- 3
- Year Built
- 1995
- Baths - Half
- 1
- Island
- St John
- MLS #
- 25-265
- Status
- Active
- Total Bathrooms
- 3
- Total SqFt
- 2,500
-
Property Description
Own a month in Paradise! TIME PERIOD: May 21- June 21: Ultra luxury estate home completely furnished and equipped; fully airconditioned: all bedrooms have views & private baths; marble floors, corian counter tops, formal dining room, pool deck, 23 foot pool; Excellent rental history! Buyer to pay stamp tax and attest. Buyer to honor all existing rentals committed to as of date Contract of Sale is fully executed.
-
Features
- AC/Fans: Yes
- Cistern Capacity (gallons): 41, 000 Gal
- Cistern: Masonry
-
Additional Info
- Builder Name: Grand Dev. Co
- Condition: Excellent
- Easements: Of record
- Fractional Name: Virgin Grand Estates Villas
- Grade: Moderate
- Restrictions: CCRs
- Zoning: R-2Residential
- Building and Unit: 3
- Construction: Masonry
- Foundation: Masonry
- Fractional Time Period: May21st - June 21st
- Insurance: Yes
- Waterfront: N
-
Amenities
- Appliances: Dishwasher, Dryer, Freezer, Refrigerator, Stove, Washer
- Pool: Private
- Furnished: Yes
- View: Panoramic, St. Thomas, West/sunset
-
Fees and Taxes
- HOA Fee: $6,500
Listing courtesy of Holiday Homes of St. John, (340) 776-6776.
Map
3b-60 Sans Soucci & Guinea Gut, Cruz Bay St. John, US Virgin Islands 00830
Loading Map...
3b-60 Sans Soucci & Guinea Gut
